For English see text below
Direct te betrekken! Instapklaar 3-kamer appartement met zonnig balkon in Rustenburg/Oostbroek.
Op zoek naar een verzorgd en instapklaar appartement op een centrale locatie in Den Haag? Dit recent gemoderniseerde 3-kamer appartement van ca. 65 m², gelegen op de 1e verdieping met balkon op het zuiden, is precies wat je zoekt.
De woning ligt in een rustige straat in de geliefde wijk Rustenburg/Oostbroek, op loopafstand van het winkelgebied Dierenselaan/Apeldoornselaan, het Zuiderpark, openbaar vervoer, scholen en overige voorzieningen. Het appartement maakt deel uit van een actieve VvE en is grotendeels voorzien van dubbele beglazing.
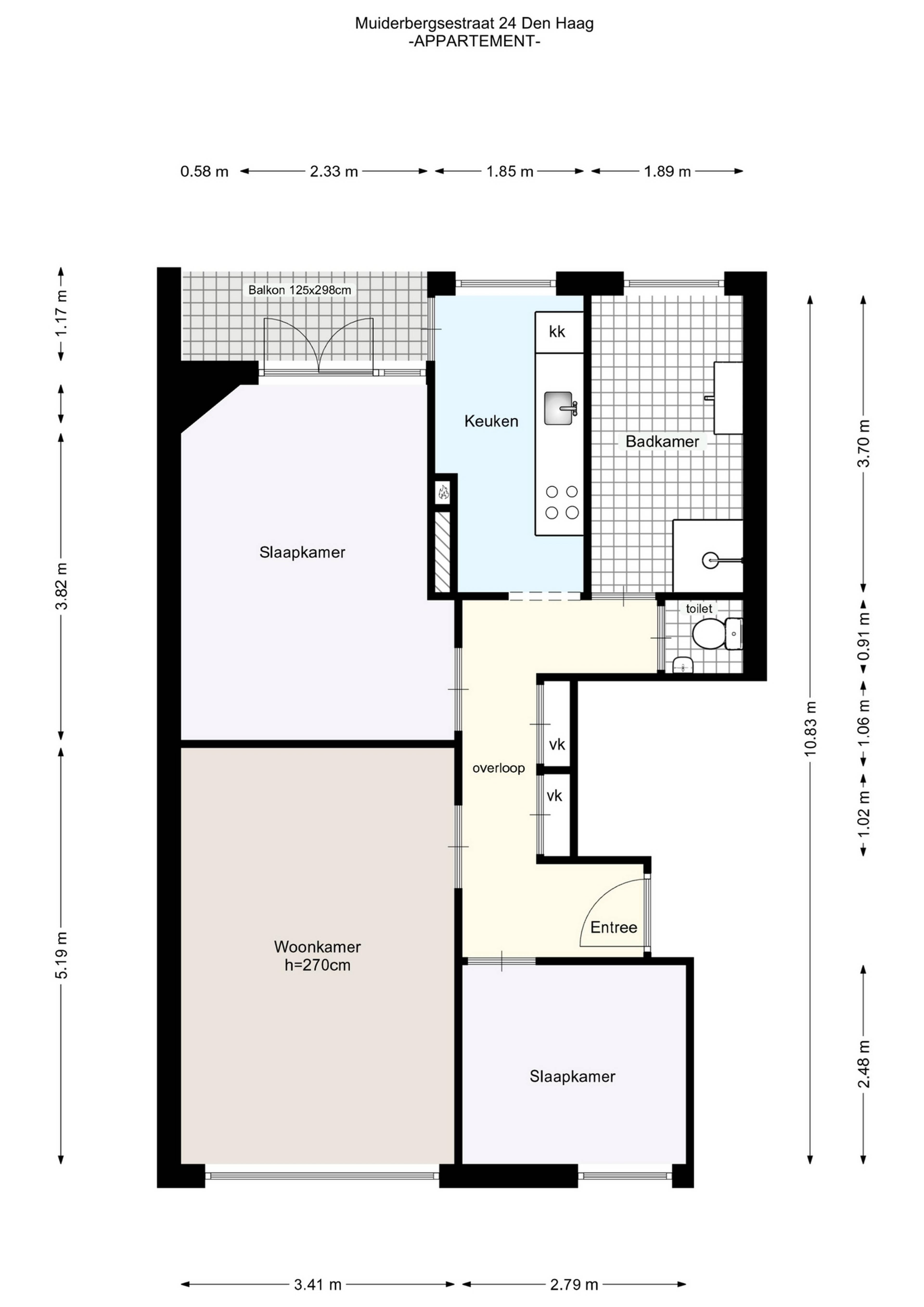
Indeling
* Open portiek naar de voordeur op de 1e verdieping
* Entree/hal met vernieuwde groepenkast, vaste kasten en moderne laminaatvloer
* Ruime, lichte woon-/eetkamer
* Twee slaapkamers: * Voorzijde: ca. 2,80 x 2,45 m
* Achterzijde: ca. 4,45 x 3,05/3,40 m met vaste kast en openslaande deuren naar het balkon
* Gesloten keuken met recht keukenblok voorzien van inbouwapparatuur: koelkast, vriezer, 4-pits gaskookplaat, RVS afzuigkap, vaatwasser en toegang tot het balkon
* Zonnig balkon op het zuiden
* Moderne badkamer met douchecabine, wastafelmeubel en handdoekradiator
* Separate toiletruimte met fonteintje
Bijzonderheden
* Bouwjaar: ca. 1926
* Gebruiksoppervlakte wonen: ca. 65 m²
* Erfpacht: canon € 115,86 per jaar
* Kozijnen en buitendeuren zijn vervangen in 2023
* Keuken en toilet zijn vervangen in 2023
* Woning grotendeels voorzien van dubbele beglazing
* Balkon op het zuiden
* Actieve VvE, bijdrage € 75,- per maand
* Verwarming via AWB cv-combiketel uit 2013 (lease) contract CV warmtepomp. Dit contract loopt af op 16 februari 2026. bijdrage €54,71 per maand
* Vernieuwde elektra, uitgebreide groepenkast
* Strak gestucte wanden
* Nieuwe doorgelegde laminaatvloer
* Energielabel C, geldig tot 10 juni 2035
* Verwachte oplevering: eind eerste kwartaal 2026
Kortom: een keurig appartement op een gunstige locatie dat zonder verbouwen direct betrokken kan worden. Ideaal voor starters of jonge stellen. Interesse? Plan snel een bezichtiging in, wij laten je de woning graag zien!
------------------------------------------------
Ready to move in! Turnkey 2-bedroom apartment with sunny balcony in Rustenburg/Oostbroek
Are you looking for a well-maintained, move-in-ready apartment in a central location in The Hague? This recently modernized 2-bedroom apartment of approximately 65 m², located on the first floor with a sunny south-facing balcony, is exactly what you’re looking for.
The property is situated in a quiet street in the popular Rustenburg/Oostbroek district, within walking distance of the Dierenselaan/Apeldoornselaan shopping area, Zuiderpark, public transport, schools, and other amenities. The apartment is part of an active Homeowners’ Association (VvE) and is largely fitted with double glazing.
Layout
* Open porch leading to the front door on the first floor
* Entrance/hallway with new electrical panel, storage cupboard, and modern laminate flooring
* Spacious and bright living/dining room with stained-glass upper windows
* Two bedrooms:
* Front: approx. 2.80 x 2.45 m
* Rear: approx. 4.45 x 3.05/3.40 m with built-in wardrobe and French doors to the balcony
* Separate kitchen with straight kitchen unit, equipped with built-in appliances: refrigerator, freezer, 4-burner gas hob, stainless steel extractor hood, dishwasher, and access to the balcony
* Sunny south-facing balcony
* Modern bathroom with luxury shower cabin, washbasin unit, and towel radiator
* Separate toilet with small sink
Key features
* Year of construction: approx. 1926
* Living area: approx. 65 m²
* Leasehold: annual ground rent €115.86
* Window frames and exterior doors replaced in 2023
* Partly fitted with double glazing
* Kitchen replaced in 2023
* South-facing balcony
* Active Homeowners’ Association, contribution €75 per month
* Heating via an AWB central heating combi boiler from 2013 (leased) with a central heating heat pump contract. This contract expires on February 16, 2026, €54,71 per month
* Updated electrical installation and extended fuse box
* Smooth plastered walls
* New continuous laminate flooring
* Energy label C, valid until 10 June 2035
* Expected delivery: end of the first quarter of 2026
In short: a neat, well-finished apartment in a convenient location that can be moved into right away — ideal for first-time buyers or young couples. Interested? Schedule a viewing soon — we’d be happy to show you around!