Te koop: Winkelruimte met garagebox – Wagenstraat 167, Den Haag
Vraagprijs: € 565.000 k.k.
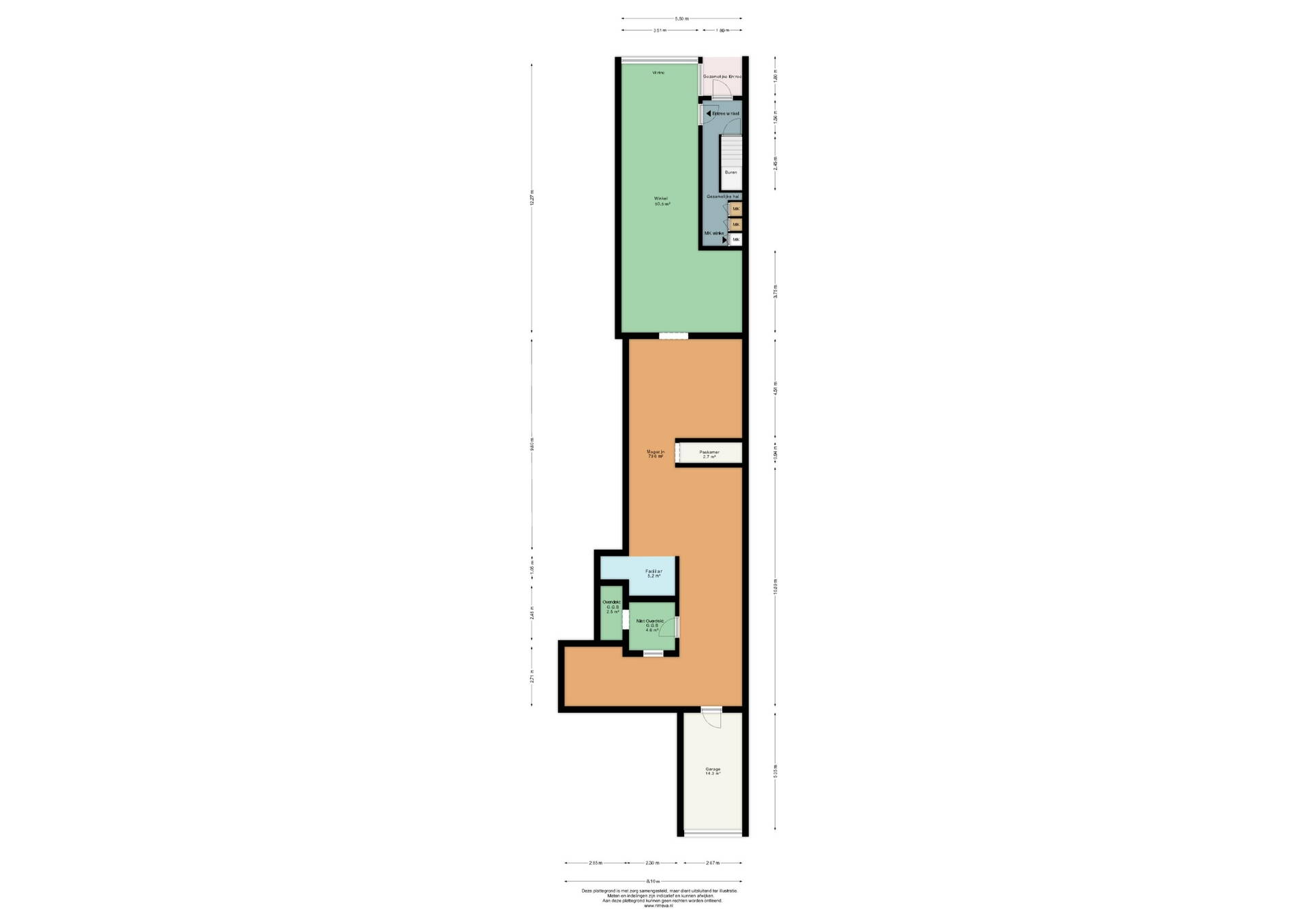
Commerciële winkelruimte van circa 173 m² op uitstekende zichtlocatie in het centrum van Den Haag – inclusief garagebox Wagenstraat 151
In het hart van Chinatown Den Haag, aan de levendige Wagenstraat, bieden wij deze representatieve winkelruimte te koop aan. Dankzij de prominente ligging en grote raampartij beschikt het pand over een uitstekende attentiewaarde. De ruimte is bij uitstek geschikt voor detailhandel, showroom of andere commerciële invullingen.
Bijzonder aan dit object is de bijbehorende garagebox, gelegen op korte afstand van het pand. Deze biedt praktische mogelijkheden voor opslag, bevoorrading of parkeren.
Kenmerken
Adres: Wagenstraat 167, 2512 AN Den Haag
Bestemming: Detailhandel / commerciële ruimte
Oppervlakte winkelruimte: circa 173 m²
Inclusief garagebox (apart appartementsrecht)
Staat van onderhoud: opknap behoevend
Eigen entree aan de straatzijde
Grote raampartij met veel lichtinval en hoge zichtbaarheid
Ligging en bereikbaarheid
Door de ligging aan de entree van het Haagse stadscentrum en Chinatown beschikt deze winkelruimte over een hoge attentiewaarde. De zichtlocatie aan een drukke winkelstraat zorgt voor veel passantenverkeer.
Het object is uitstekend bereikbaar:
Diverse tram- en bushaltes bevinden zich op loopafstand
NS-stations Den Haag Centraal en Hollands Spoor zijn binnen enkele minuten te bereiken
Op- en afritten van de A4, A12 en A13 liggen op circa 1.500 meter afstand
De inbegrepen garagebox biedt extra gemak voor parkeren of opslag
Bijzonderheden
Vrij van huur, vrijwel direct beschikbaar
Inclusief garagebox
VvE-bijdrage €265,43
Meer informatie of bezichtigen?
Voor aanvullende informatie of het plannen van een bezichtiging kunt u contact met ons opnemen. Wij informeren u graag over de mogelijkheden van dit unieke object in het centrum van Den Haag.