Bekijk
Algemeen
Omschrijving
For English see text below
Starters opgelet! Centraal gelegen sfeervol uitgebouwde tweelaags driekamer hofjeswoning met vliering
Deze historische tussenwoning uit 1882 heeft een gebruikersoppervlakte van 76m² en beschikt over 2 slaapkamers. De woning is aan de achterzijde uitgebouwd, waardoor er een ruime badkamer is gerealiseerd. Plafondhoogte begane grond is 2.79 meter. Het platte dak van de uitbouw zou als dakterras kunnen fungeren. Door de aanwezigheid van een vliering is er voldoende bergruimte. Aan de achterzijde grenst de woning aan buurttuin Jacobahof, met onder meer een imker, speeltuin en een ecologische stadsboerderij.
De Jacobastraat is een autoluwe straat, centraal gelegen met alle gemakken binnen handbereik. Het centrum van Den Haag en het openbaar vervoer, waaronder de Randstadrail, bevinden zich op loopafstand. Bovendien zijn het Centraal Station, Station Hollands Spoor en het strand gemakkelijk en snel bereikbaar.
Deze hofjeswoning is uitermate geschikt voor één- tot driepersoonshuishoudens. Een bezichtiging is zeker de moeite waard. Maak snel een afspraak!
Indeling begane grond
Via de hal wordt de woonkamer (24m²) met zicht op de open keuken bereikt. De woonkamer met plafondhoogte van 2.79 meter beschikt over een trapkast. Op de vloer liggen losse vloertegels. De moderne open keuken (8m²) met L-vormig aanrechtblad bevindt zich aan de achterzijde en is uitgerust met een vierpits inductie kookplaat met afzuigscherm, koelkast, vrieskast, vaatmachine, koelkast, vriezer (3 laden) en oven. Aan de achterzijde bevindt zich eveneens de nieuwe moderne badkamer, (4.6m²), voorzien van toilet, douchecabine (rainshower), wastafel met meubel en spiegelkast. Zowel keuken als badkamer beschikken over een dakraam. Achter de keuken ligt de wasruimte (3m²) met opstelplaats voor wasmachine en droger. Deze ruimte geeft toegang tot de buurttuin.
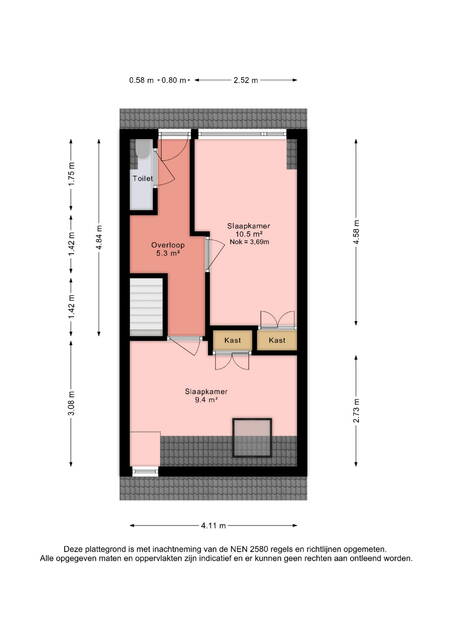
Indeling eerste verdieping
Via een dichte houten trap in de hal wordt de overloop bereikt. Hieraan grenzen een toilet (met fonteintje) en twee slaapkamers van resp. 9.4m² (voorzijde) en 10.5² (achterzijde). Beide slaapkamers hebben een inpandige kast. De kleinste slaapkamer beschikt verder over een dakkapel. De grootste slaapkamer (nokhoogte 3.69 meter) beschikt over een vliering. Hier bevindt zich ook de cv installatie. Via de overloop kan toegang worden verkregen tot het platte dak met mogelijkheid tot het realiseren van een dakterras met uitzicht op de buurttuin ‘Jacobahof’.
Overige kenmerken
Plafond en wand(en) in woonkamer dienen te worden afgewerkt
Het merendeel van de kozijnen zijn uitgerust met dubbel glas
Meterkast bevindt zich in de woonkamer, het aantal groepen bedraagt 5
De Remeha cv-installatie is uit 2021 (december)
De houten- en kunststof kozijnen zijn deels uitgerust met HR++ glas
Kozijnen achterzijde eerste verdieping zijn in 2023 vernieuwd
Keuken, toilet en badkamer zijn vernieuwd in 2023 en 2024
Het energielabel bedraagt G en is geldig tot 05-10-2031
Op de vloer van de begane grond liggen (losse) vloertegels, op de eerste verdieping laminaat
Glasvezel is aanwezig
Parkeren in de directe omgeving kan met vergunning
Een ouderdoms- materialen – en asbestclausule worden in de koopovereenkomst opgenomen
De woning ligt op eigen grond
Oplevering in overleg
Wetenswaardig
De woningen aan de Jacobastraat zijn in 1882-84 gesticht door de bouwkundige Reijer van der Vlugt De straatjes werden vernoemd naar zijn overleden vrouw Jacoba Roels. Voor ontspanning kunt u terecht in het Jacobahofje om de hoek met moestuintjes van bewoners, ecologische stadsboerderij, imker en een speelplaats voor de kinderen. In 1994 zijn alle woningen door Project Organisatie Stadsvernieuwing volledig extern aangepakt met subsidie van de gemeente Den Haag, waarbij alle uiterlijke kenmerken behouden zijn gebleven. Zo werden alle woningen in de Jacobastraat uitgerust met hardhouten kozijnen met dubbele beglazing. Tijdens de renovatie werd ook buurttuin Jacobahofje opgericht.
---
Attention first-time buyers! Centrally located, this charming, two-story, three-room courtyard house with an attic has been extended.
This historic terraced house from 1882 has a living area of 76m² and features two bedrooms. The house has been extended at the rear, creating a spacious bathroom. The ground floor ceiling is 2.79 meters. The flat roof of the extension could serve as a roof terrace. The attic provides ample storage space. At the rear, the house borders the Jacobahof community garden, which includes a beekeeper, playground, and an ecological city farm.
Jacobastraat is a low-traffic street, centrally located with all amenities within easy reach. The city center of The Hague and public transport, including the RandstadRail, are within walking distance. Furthermore, Central Station, Hollands Spoor Station, and the beach are easily and quickly accessible.
This courtyard house is ideal for one- to three-person households. A viewing is definitely worthwhile. Make an appointment quickly!
Ground Floor Layout
The living room (24m²) overlooking the open-plan kitchen is accessed through the hall. The living room, with a 2.79-meter ceiling, includes a storage cupboard under the stairs. The floor is tiled. The modern open-plan kitchen (8m²) with an L-shaped countertop is located at the rear of the house and is equipped with a four-burner induction cooktop with extractor hood, refrigerator, freezer, dishwasher, refrigerator, freezer (3 drawers), and oven. The new, modern bathroom (4.6m²) is also located at the rear, featuring a toilet, shower enclosure (rain shower), vanity unit, and mirrored cabinet. Both the kitchen and bathroom have a skylight. Behind the kitchen is the laundry room (3m²) with space for a washing machine and dryer. This room provides access to the community garden.
First Floor Layout
The landing is reached via a closed wooden staircase in the hall. Adjacent to this landing are a toilet (with a small sink) and two bedrooms, one with a double bed and one with a single bed. 9.4m² (front) and 10.5m² (rear). Both bedrooms have built-in wardrobes. The smallest bedroom also has a dormer window. The largest bedroom (ridge height 3.69 meters) has a loft. This is also where the central heating system is located. The landing provides access to the flat roof, with the possibility of creating a roof terrace overlooking the "Jacobahof" community garden.
Other features
The ceiling and walls in the living room need to be finished.
Most of the window frames are fitted with double glazing.
The meter cupboard is located in the living room; there are 5 circuits.
The Remeha central heating system dates from 2021 (December).
The wooden and uPVC window frames are partially fitted with HR++ glass.
The window frames on the rear of the first floor were replaced in 2023.
The kitchen, toilet, and bathroom were replaced in 2023 and 2024.
The energy label is G and is valid until October 10, 2031.
The ground floor has (loose) floor tiles, and the first floor has laminate flooring.
Fiber optic internet is available.
Parking in the immediate vicinity is possible with a permit.
An age, materials, and asbestos clause will be included in the purchase agreement.
The house is located on freehold land.
Delivery is negotiable.
Things to know:
The houses on Jacobastraat were built in 1882-84 by the architect The streets were named after his late wife, Jacoba Roels. For relaxation, you can visit the Jacobahofje around the corner, with its vegetable gardens, an ecological urban farm, a beekeeper, and a children's playground. In 1994, all the houses were completely renovated by the Urban Renewal Organization Project (Project Organisatie Stadsvernieuwing) with a subsidy from the municipality of The Hague, while retaining all their external features. For example, all the houses on Jacobastraat were fitted with hardwood window frames and double glazing. The Jacobahofje community garden was also established during the renovation
Kenmerken
Adres
2512 JG Den Haag
Prijs
Details
Indeling
Tuin
Garage
Bergruimte
Energielabel
Uw makelaar
Herbert Smit
Geïnteresseerd in deze woning? Vul dit formulier in voor een bezichtiging van deze woning of voor meer informatie. Dan nemen wij zo snel mogelijk contact met u op.
