Goed onderhouden en licht appartement met een ruim balkon en eigen berging!
Dit driekamerappartement (oorspronkelijk vier kamers) ligt op de vijfde en tevens bovenste verdieping van een verzorgd appartementencomplex. Het ruime en zonnige balkon met vrij uitzicht nodigt uit om heerlijk buiten te zitten.
Door de aanwezigheid van veel openbare voorzieningen en uitvalswegen is de ligging ideaal: op loopafstand bevindt zich de Westfield Mall of the Netherlands, de supermarkt Dirk, het historische Damcentrum met de Sluis en horecavoorzieningen, scholen, zwembad, het ziekenhuis HMC en openbaar vervoer ligt in de directe nabijheid evenals de uitvalswegen naar de A4, A12 en A13.
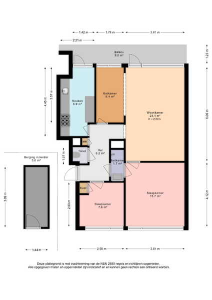
Indeling begane grond
Centrale, afgesloten entree met brievenbussen, videofooninstallatie en toegang tot de inpandige bergingen. Via de lift of trap bereikt u de vijfde verdieping.
Indeling appartement
De ruime hal geeft u toegang tot de meterkast, het toilet (met fonteintje), de badkamer, keuken, woon/eetkamer en de kleinere slaapkamer (met vaste kast) aan de voorzijde. De keuken is uitgerust met een vijfpits gasfornuis met afzuigkap, oven, vaatwasser, koel-/vriescombinatie, opstelplaats van de boiler en de wasmachineaansluiting. De volledig betegelde badkamer is zowel vanuit de hal als vanuit de grote slaapkamer toegankelijk en voorzien van een douchecabine en wastafel met meubel. Aan de achterzijde bevindt zich de ruime woon/eetkamer, die dankzij de grote ramen veel lichtinval heeft. Vanuit hier is er toegang tot de grote slaapkamer aan de voorzijde. Zowel vanuit de woonkamer als vanuit de keuken is het ruime en zonnige balkon met het mooie uitzicht bereikbaar.
Overige kenmerken:
Geen bovenburen!
Warm water wordt verkregen via een elektrische boiler (eigendom).
Eigen berging in de onderbouw.
Houten kozijnen, voorzien van dubbel glas.
Appartement is aangesloten op blokverwarming.
Actieve VvE, maandelijkse bijdrage €275,- per maand.
Voorschot stookkosten €120,- per maand.
Gemeenschappelijke parkeerruimte (met slagboom) aan de achterzijde.
Het complex ligt op eigen grond.
Oplevering in overleg.
_____________________
Well-maintained and bright apartment with a spacious balcony and private storage!
This three-room apartment (originally four rooms) is located on the fifth and top floor of a well-kept apartment complex. The spacious and sunny balcony with an unobstructed view invites you to enjoy the outdoors.
Thanks to the presence of many public amenities and major roads, the location is ideal: within walking distance you’ll find the Westfield Mall of the Netherlands, the Dirk supermarket, the historic Damcentrum with the Sluis and various restaurants, schools, a swimming pool, the HMC hospital, and public transport. The highways A4, A12, and A13 are also nearby.
Layout ground floor
Central, secured entrance with mailboxes, video intercom system, and access to the indoor storage areas. The fifth floor can be reached by elevator or stairs.
Layout apartment
The spacious hallway provides access to the meter cupboard, the toilet (with hand basin), the bathroom, kitchen, living/dining room, and the smaller bedroom (with built-in closet) at the front. The kitchen is equipped with a five-burner gas stove with extractor hood, oven, dishwasher, fridge/freezer combination, boiler, and washing machine connection. The fully tiled bathroom can be accessed both from the hallway and the main bedroom and is fitted with a shower cabin and washbasin with cabinet. At the rear is the spacious living/dining room, which has plenty of natural light thanks to the large windows. From here there is access to the large bedroom at the front. The spacious and sunny balcony with its beautiful view can be reached from both the living room and the kitchen.
Other features:
No upstairs neighbors!
Hot water is supplied by an electric boiler (owned).
Private storage in the basement.
Wooden window frames with double glazing.
The apartment is connected to district heating.
Active homeowners’ association (VvE), monthly contribution €275.
Heating advance payment €120 per month.
Communal parking area (with barrier) at the rear.
The complex stands on freehold land.
Delivery in consultation.