For English see text below
Families opgelet….!
Sfeervol drielaags vierkamer eengezinswoning met voor- en achtertuin, twee bergingen en garage
Deze gerenoveerde ruime tussenwoning uit 1952 heeft een gebruiksoppervlakte van 134m² en ligt op een perceel van 216 m². Het beschikt over drie ruime slaapkamers en twee badkamers. Via de woonkamer – met uitzicht op een waterpartij - en veranda (19m²) wordt de achtertuin (zuid-oost ligging) bereikt. Van hieruit wordt toegang verkregen tot de twee bergingen en achtergelegen garage (16m²)
De locatie is prima, gelegen in het gewilde "Raadhuiskwartier", een groene, kindvriendelijk en ruim opgezette wijk. Het biedt een mooie combinatie van rustig wonen en alle voorzieningen in de buurt, zoals winkels, Westfield Mall of the Netherlands, scholen, sportgelegenheden, parken, een grote speeltuin en de gezellige sluis van Leidschendam op loopafstand. Goed bereikbaar met OV en auto, met de snelwegen (A4, A12, A13 in de nabijheid.
Deze fraaie modern ingerichte woning is vanwege locatie, grootte en indeling uitermate geschikt voor meerpersoons huishoudens. Een bezichtiging is zeker de moeite waard. Maak snel een afspraak!
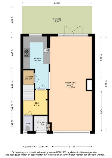
Indeling begane grond
Via een voortuin (26m²) wordt het tochtportaal met meterkast en aangrenzende hal bereikt. Deze geeft toegang tot toilet en tuingerichte keuken (9.5m²), voorzien van Belgisch hardstenen aanrechtblad (vijfpits gasfornuis met dubbele oven (Boretti), afzuigschouw, koelkast en vaatmachine. De vriezer staat in de inpandige (trap)kast. De (deels open) keuken staat in open verbinding met de doorzonwoonkamer van 33m². Plafondhoogte bedraagt 2.61 meter. De woonkamer beschikt over een open haard. Via openslaande deuren wordt de besloten achtergelegen tuin bereikt. Over de volle breedte ligt een ruime veranda. De betegelde tuin is aangekleed met diverse borders. Aan de achterzijde liggen 2 bergingen van resp. 4m² en 15m². De garage wordt ontsloten via de grootste berging.
Indeling eerste verdieping
Via een dichte houten trap in de hal wordt de overloop bereikt met aangrenzend een badkamer en twee slaapkamers van resp. 14m² en 15m². De aan de achterzijde gelegen slaapkamer beschikt over airco, een inloopkast (5m²) en geeft toegang tot een over de volle breedte gelegen balkon (8m²). De aan de voorzijde gelegen slaapkamer beschikt over 2 vaste kasten en biedt fraai uitzicht op een waterpartij. De aan de voorzijde gelegen badkamer is uitgerust met een inloopdouche (voorzien van rainshower), toilet, wastafel en wastafelmeubel. De vloer is voorzien van elektrische vloerverwarming.
Indeling tweede verdieping
Via een vaste houten trap wordt de overloop bereikt met aangrenzend een tweede badkamer en derde slaapkamer. De overloop biedt plaats voor de Remeha cv installatie en omvormer voor de zonnepanelen. De badkamer is uitgerust met een zwevend toilet, wastafel, douchecabine en wasmachine aansluiting. De slaapkamer (met 2 dakkapellen) beschikt over knieschotten voor extra bergruimte.
Overige kenmerken
De woning is in 2008/2009 volledig gerenoveerd, waaronder elektra, vloeren, stucwerk wanden, gas- en waterleidingen, mechanische ventilatie en bestrating voor- en achtertuin
De houten- en kunststofkozijnen zijn uitgevoerd met dubbel glas
Vloer van de woonkamer is voorzien van massief eikenhouten planken, de slaapkamer vloeren van laminaat
Beide trappen zijn bekleed met vloerbedekking
Raamkozijnen op de begane grond, eerste verdieping voor- en tweede verdieping achterzijde zijn voorzien van op maat gemaakte shutters
Inbouwapparatuur keuken is uit 2023
Vloer badkamer is voorzien van vloerverwarming (elektrisch)
Er zijn 8 zonnepanelen aanwezig (2024)
Energielabel is D en geldig tot 28-05-2029
Remeha cv-installatie is uit 2024
Bergingen en garage zijn voorzien van licht en elektra
Parkeren kan op eigen grond en is gratis in de directe omgeving
De woning ligt op eigen grond
Oplevering in overleg
---
Attention, families!
Attractive three-story, four room family home with front and back gardens, two storage units, and a garage.
This renovated, spacious terraced house from 1952 has a living area of 134m² and is situated on a 216m² plot. It features three spacious bedrooms and two bathrooms. The south-east-facing back garden is accessible through the living room – overlooking a water feature – and the veranda (19m²). From here, access is provided to the two storage units and the rear garage (16m²).
The location is excellent, situated in the desirable "Raadhuiskwartier," a green, child-friendly, and spacious neighborhood. It offers a wonderful combination of peaceful living and all amenities nearby, such as shops, Westfield Mall of the Netherlands, schools, sports facilities, parks, a large playground, and the charming Leidschendam lock within walking distance. Easily accessible by public transport and car, with the A4, A12, and A13 motorways nearby.
This beautiful, modernly furnished home is ideal for multi-person households due to its location, size, and layout. A viewing is definitely worthwhile. Schedule an appointment soon!
Ground floor layout
The front garden (26m²) leads to a vestibule with the meter cupboard and adjoining hallway. This provides access to the toilet and the garden-facing kitchen (9.5m²), equipped with a Belgian bluestone countertop (five-burner gas stove with double oven (Boretti)), extractor hood, refrigerator, and dishwasher. The freezer is located in the built-in (understairs) cupboard. The (partially open) kitchen is open to the 33m² living room with a ceiling height of 2.61 meters. The living room features a fireplace. French doors lead to the private rear garden. A spacious veranda spans the full width of the property. The paved garden is decorated with various flowerbeds. At the rear are two storage sheds, measuring 4m² and 15m² respectively. The garage is accessed via the larger shed.
First Floor Layout
A closed wooden staircase in the hall leads to the landing, which features an adjacent bathroom and two bedrooms of 14m² and 15m² respectively. The bedroom at the rear of the house has air conditioning, a walk-in closet (5m²), and access to a full-width balcony (8m²). The bedroom at the front of the house has two built-in closets and offers a beautiful view of a water feature. The bathroom at the front of the house is equipped with a walk-in shower (with rain shower head), toilet, sink, and vanity unit. The floor is fitted with electric underfloor heating.
Second floor layout
A fixed wooden staircase leads to the landing, which includes a second bathroom and a third bedroom. The landing accommodates the Remeha central heating system and the inverter for the solar panels. The bathroom is equipped with a wall-hung toilet, sink, shower, and washing machine connection. The bedroom (with two dormer windows) has knee walls for additional storage.
Other features
The house was completely renovated in 2008/2009, including electrical wiring, flooring, plastered walls, gas and water pipes, mechanical ventilation, and paving in the front and back gardens.
The wooden and uPVC window frames are double-glazed.
The living room floor is fitted with solid oak planks, and the bedroom floors are laminate.
Both staircases are carpeted.
Window frames on the ground floor, first floor at the front, and second floor at the rear are fitted with custom-made shutters.
Built-in kitchen appliances are from 2023.
The bathroom floor has electric underfloor heating.
There are 8 solar panels (2024).
The energy label is D and valid until May 28, 2029
The Remeha central heating system is from 2024.
Storage rooms and garage are equipped with light and electricity.
Parking is available on the property and is free in the immediate vicinity.
The house is located on freehold land.
Delivery is negotiable.