For English see text below
Starters opgelet:
Tweelaags appartement met riante woonkamer, 2 slaapkamers en diepe tuin in Valkenboskwartier
Dit appartement uit 1909 heeft een gebruiksoppervlakte van circa 100m² en ligt op een kavel van 133m². De royale lichte (doorzon)woonkamer van maar liefst 43 m² (met een plafondhoogte van 3.05 meter) straal allure uit. Openslaande deuren geven toegang tot de achtertuin van circa 40m², die door de hoekligging volop privacy biedt. De woning is aan de achterzijde uitgebouwd. Hier bevindt zich onder meer een slaapkamer met uitzicht op de tuin. De tweede slaapkamer bevindt zich op de tweede woonlaag.
De locatie biedt de perfecte balans tussen het bruisende stadsleven en het comfort van rustig wonen, gelegen in het populaire Valkenboskwartier; een levendige wijk met een fijne mix van jonge gezinnen, professionals en creatievelingen. Op loopafstand bevinden zich de gezellige Weimarstraat, Fahrenheitstraat en Reinkenstraat met een breed aanbod aan winkels, restaurants en koffietentjes. Ook Park de Verademing (met speeltuinen, sportvelden, manege) ligt in de nabijheid, evenals kinderdagverblijf en (basis)scholen. Met Randstadrail (lijnen 11 en 12) en tram (lijnen 2,3 en 4) bereik je binnen 10 minuten in het centrum van Den Haag of het strand van Scheveningen. Met de auto zijn er de uitvalswegen via de Hubertustunnel en Westlandroute.
Deze woning is ideaal voor starters en kleine huishoudens die op zoek zijn naar een plek met karakter én potentie. Hier kan eigen stijl en creativiteit volop tot uiting brengen. Een bezichtiging is zeker de moeite waard. Zie ik u snel?
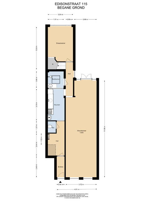
Indeling begane grond
Via een eigen entree wordt de hal (met bergruimte) bereikt met daaraan grenzend een toilet. Via de hal wordt de lichte, hoge doorzonwoonkamer bereikt; deze is ruim 11.5 meter lang. Openslaande deuren geeft toegang tot de achtertuin (noord-oosten) met een lengte van 10 meter! De overige vertrekken worden ontsloten via een aan de achterzijde van de woonkamer gelegen gang; de eenvoudige dichte keuken is uitgerust met een vierpits gasfornuis met afzuigkap, vaatmachine en losstaande koel-vriescombi. Ook bevindt zich hier de cv-installatie. Verder liggen aan deze gang een eenvoudige badkamer, voorzien van douche en wastafel. Een artist impression foto geeft de mogelijkheid van aanpassing weer. Zowel keuken als badkamer beschikken over daglicht toetreding. De aan het eind van de gang gelegen slaapkamer (13.5 m²) beschikt over kastruimte.
Indeling eerste woonlaag
Achter de badkamer bevindt zich de dichte houten trap die toegang geeft tot een tweede slaapkamer (15m²), plafondhoogte bedraagt 2.66 meter. Deze ruimte extra licht vanwege de aanwezigheid van raamkozijnen in twee gevels. Door de hoekligging is het uitzicht weids. Het trapgat biedt extra bergruimte.
Overige kenmerken
Keuken en badkamer zijn gedateerd
Dak uitbouw is circa 10 jaar geleden vervangen
Vloer woonkamer en slaapkamer begane grond zijn geïsoleerd
VVE is recentelijk opgericht (aandeel betreft 1/3)
De CV-installatie is uit 2005
Aantal groepen bedraagt 8
Merendeel van de kozijnen zijn van kunststof met isolatieglas
Energielabel is E en geldig tot 26 juni 2035
De VVE is onlangs opgericht en ingeschreven in handelsregister van KvK; maandelijkse bijdrage is € 159,61
Een asbest-, ouderdoms- en materialen clausule zijn van toepassing
Er is in de foto presentatie gebruik gemaakt van een drietal artist impression foto’s
Appartement is gelegen op eigen grond
Parkeren in de directe omgeving is vergunning plichtig
Oplevering kan snel
---
Attention first-time buyers:
Two-story apartment with spacious living room, 2 bedrooms, and deep garden in Valkenboskwartier
This apartment from 1909 has a usable floor area of approximately 100 m² and is situated on a plot of 133 m². The generous (through-light) living room of no less than 43 m² (with a ceiling height of 3.05 meters) exudes allure. French doors provide access to the backyard of approximately 40 m², which offers plenty of privacy due to its corner location. The house has been extended at the rear. This includes a bedroom with a view of the garden. The second bedroom is located on the second floor.
The location offers the perfect balance between bustling city life and the comfort of quiet living, situated in the popular Valkenboskwartier; a lively neighborhood with a pleasant mix of young families, professionals, and creatives. Within walking distance are the charming Weimarstraat, Fahrenheitstraat, and Reinkenstraat, with a wide range of shops, restaurants, and coffee shops. Park de Verademing (with playgrounds, sports fields, and a riding school) is also nearby, as well as a daycare center and (primary) schools. With Randstadrail (lines 11 and 12) and tram (lines 2, 3, and 4), you can reach the center of The Hague or Scheveningen beach within 10 minutes. By car, there are arterial roads via the Hubertus Tunnel and Westland Route.
This home is ideal for first-time buyers and small households looking for a place with character and potential. Here, personal style and creativity can be fully expressed. A viewing is certainly worthwhile. Will I see you soon?
Ground floor layout
A private entrance leads to the hall (with storage space), adjacent to which is a toilet. The hall leads to the bright, high-ceilinged living room, which is over 11.5 meters long. French doors provide access to the rear garden (northeast-facing), which is 10 meters long! The other rooms are accessed via a hallway located at the rear of the living room; the simple enclosed kitchen is equipped with a four-burner gas stove with extractor hood, dishwasher, and freestanding fridge-freezer. Also is this the place for cv-installation. Furthermore, a simple bathroom equipped with a shower and sink is located off this hallway. An artist's impression photo shows the possibility of modification. Both the kitchen and bathroom benefit from natural light. The bedroom (13.5 m²) located at the end of the hallway features closet space.
Layout of the first floor
Behind the bathroom is the enclosed wooden staircase providing access to a second bedroom (15m²); the ceiling height is 2.66 meters. This room is particularly bright due to the presence of window frames in two facades. The corner location offers a wide view. The stairwell provides additional storage space.
Other features
Kitchen and bathroom are dated
Roof extension was replaced approximately 10 years ago
Floors in the living room and ground floor bedroom are insulated
The Owners' Association (VVE) was recently established (share is 1/3)
The central heating system dates from 2005
Number of circuits is 8
Majority of the window frames are from plastic with isolation glass
Energy label is E and valid until June 26, 2035
The VVE was recently establishd and registerde by Chamber of Commerce. Monthly contribution is € 159.61
An asbestos, age, and materials clause applies
Three artist impression photos have been used in the photo presentation
Apartment is situated on freehold land
Parking in the immediate vicinity requires a permit
Quick completion is possible