Prachtig parterre-appartement, compleet gerenoveerd!
In het mooie Voorburg-West, vlakbij de Herenstraat en het station Voorburg, ligt dit ruime parterre-appartement van ca. 99 m2. De woning is uitgebouwd aan de achterzijde en opnieuw ingedeeld waardoor er een praktische en lichte woonruimte is ontstaan. Het appartement is recent compleet gerenoveerd, voorzien van nieuwe leidingen, elektra, vloerverwarming, kozijnen, vloeren, deuren, keuken en badkamer. Er is een zitkamer, 2 ruime slaapkamers en een tuin met gebouwgebonden schuur en achterom. De open woonkeuken vormt het hart van het huis. Kenmerkend voor de woning is het licht en de vele ramen. Kortom, een heerlijk huis met zeer hoogwaardige afwerking en alle moderne luxe.
De ligging in Voorburg-West biedt een hoog voorzieningenniveau waaronder winkels, horeca, scholen, parken en zorg op loop-/fietsafstand. Het oude centrum van Rijswijk is ook vlakbij. Verder zijn er uitstekende openbaar vervoerverbindingen (tram 1, 15 & bus 23) naar onder meer het centrum van Delft en Den Haag. De snelwegen A4 Den Haag - Amsterdam/Rotterdam, A12 Den Haag - Utrecht, A13 Den Haag - Rotterdam zijn 2 minuten rijden maar buiten gehoorafstand.
INDELING:
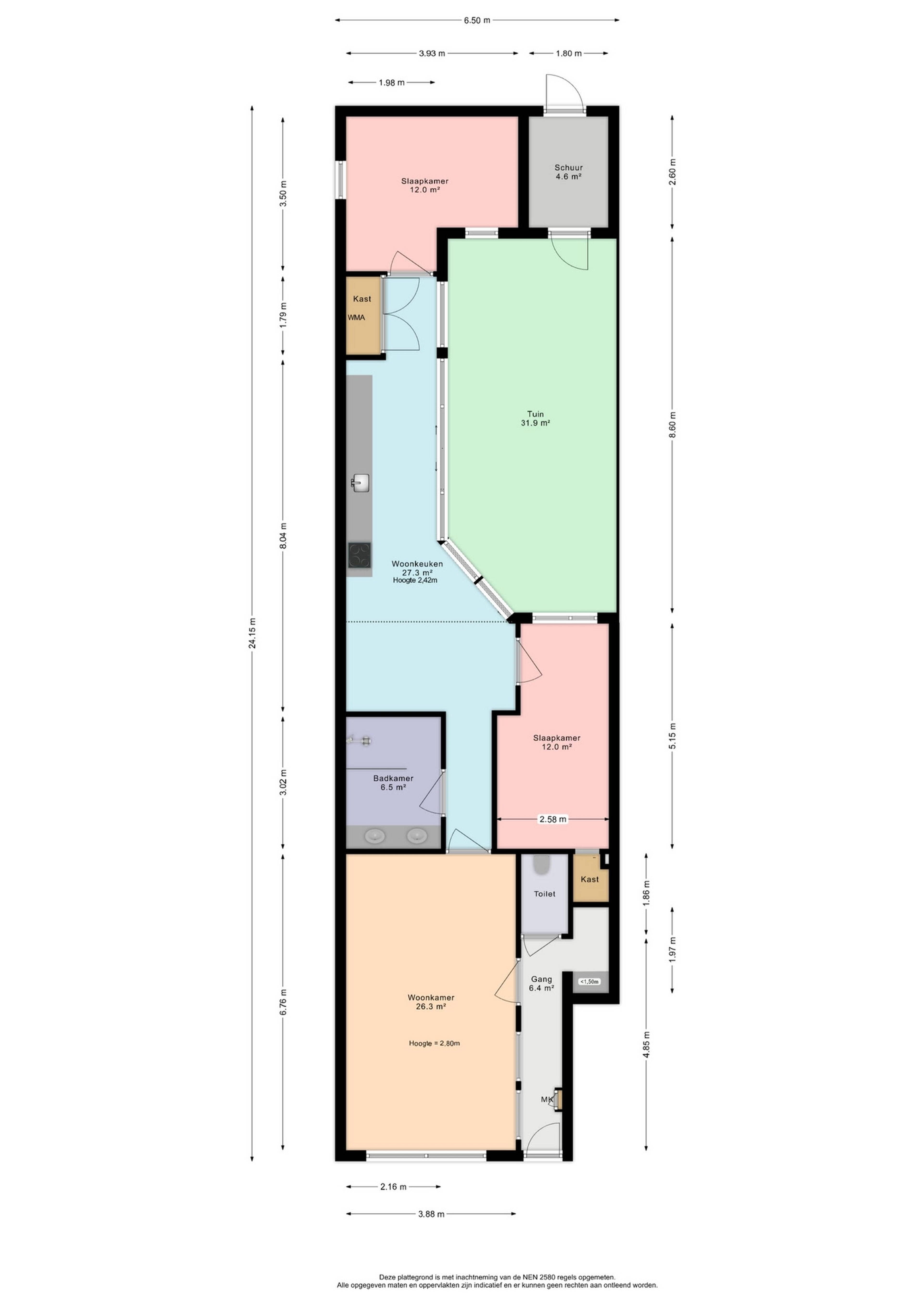
Entree woning, in de hal een nieuw geïnstalleerde groepenkast. Er is opbergruimte/kapstokruimte gecreëerd. Ruim toilet met fonteintje en mechanische ventilatie. Deur naar de woonkamer met vloerverwarming en grote ramen aan de straatzijde. Deur naar de rest van de woning. Links in de hal/doorgang bevindt zich de grote moderne badkamer met dubbele wastafel, inloopdouche en mechanische ventilatie.
Hierna loop je de heerlijke open woonkeuken in met ruime opstelling voor een tafel. De schuifdeur leidt naar de tuin. Rechts de deur naar slaapkamer 1 met inbouwkast en uitzicht op de tuin. In het hart van het huis is de moderne keuken, voorzien van inductiekookplaat, oven, magnetron en koelvriescombinatie. Hiernaast is een dubbele schuifdeur naar de tuin.
Voorbij de keuken is een afgesloten wasruimte met aansluiting voor wasmachine en droger. Daarnaast is toegang tot slaapkamer 2, met wastafel en uitzicht op de tuin.
Vanuit de tuin is er toegang tot de aangebouwde schuur, die weer leidt naar de achterom.
Kortom, dit bijzonder lichte en luxe parterre-appartement is van alle gemakken voorzien. Ideaal voor liefhebbers van ruimte en comfort in een heerlijke buurt.
Het kan zo betrokken worden!
Bijzonderheden:
- Woning is recent compleet gerenoveerd
- Geen gasaansluiting
- Voorzien van nieuwe leidingen, elektra, kozijnen, badkamer en keuken
- Vloerverwarming in de woonkamer
- Schuur geeft toegang tot achterom
- Bouwjaar 1935
- Energielabel C
- Ouderdoms- en niet-bewoningsclausule van toepassing
- Oplevering kan per direct