MAAK SNEL EEN AFSPRAAK OM DIT PARELTJE TE KOMEN BEZICHTIGEN. NIEUW IN VERKOOP DIT HEERLIJK RUIME 3 KAMERAPPARTEMENT MET ROYAAL DAKTERRAS MET HEERLIJK VRIJ UITZICHT. HET APPARTEMENT GELEGEN OP DE BOVENSTE VERDIEPING (3) IS PER LIFT TE BEREIKEN EN BESCHIKT TEVENS OVER EEN AFGESLOTEN PARKEERPLAATS. KORTOM UW BEZICHTIGING MEER DAN WAARD!
Locatie en bereikbaarheid
De woning is gelegen in het hart van Leidschenveen, op loopafstand van het winkelcentrum 't Hoge Veen en het openbaar vervoer (station Leidschenveen met o.a. Randstadrail en de tram). Daarnaast zijn er in de directe omgeving diverse scholen (zoals de British School), een gezellige stadsboerderij en het prachtige natuur- en wandelgebied de “Nieuwe Driemanspolder”. Ook ligt de woning zeer centraal ten opzichte van de uitvalswegen A12, A4, A13 en via de N14 ben je in mum van tijd in het gezellige centrum van Voorburg, Scheveningen of in het moderne winkelcentrum “Westfield Mall of the Netherlands” in Leidschendam.
Indeling:
Afgesloten portiek met bellentableau, lift en of trap naar derde verdieping,
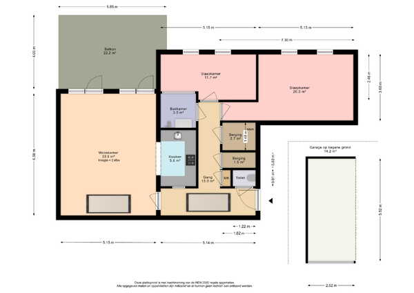
Royale T vormige hal met toegang tot alle vertrekken. Doordat er enkele dakkoepels zijn geplaatst betreft het een heerlijk lichte hal. Toegang tot de meterkast, ruimte voor wasmachine en aparte kast met CV ketel (Vaillant ecotec 2020)
Toilet
Een modern betegelde ruimte met zwevend toilet en fonteintje.
Woonkamer
Doordat in de woonkamer ook dakvensters zijn aangebracht is dit een heerlijk lichte ruimte van prima formaat.
Het riante aangrenzende betegelde dakterras (ca 22m2) is via een tweetal deuren te bereiken. Hier kunt u heerlijk van de zon genieten.
Keuken
De keuken grenst aan de woonkamer en beschikt over diverse inbouwapparatuur als een koel/vriescombi, een vaatwasser, een elektrische oven, een RVS afzuigkap en een 5 pits gaskookplaat.
Badkamer
Een royale volledig betegelde badkamer voorzien van ruime inloopdouche en wastafelmeubel.
Slaapkamer 1 en 2
Deze beide kamers liggen aan de achterzijde van het complex met uitzicht op de vijverpartij.
In de hoofdslaapkamer hangt een airco (2021)
- Bouwjaar 2007
- Woonoppervlak 101 m²
- Groot dakterras
- Laminaatvloer
- Zowel intern als extern goed onderhouden
- afgesloten parkeerplaats
- Zonwering aanwezig
- Vaillant HR combiketel (2020)
- Actieve VVE met professioneel beheerder
- VVE bijdrage € 196,95
- Oplevering in overleg