For English see text below.
Liefhebbers van comfortabel wonen in een rustige omgeving opgelet!
Royaal driekamer hoekappartement met twee ruime terrassen en inpandige garagebox in kleinschalig appartementencomplex.
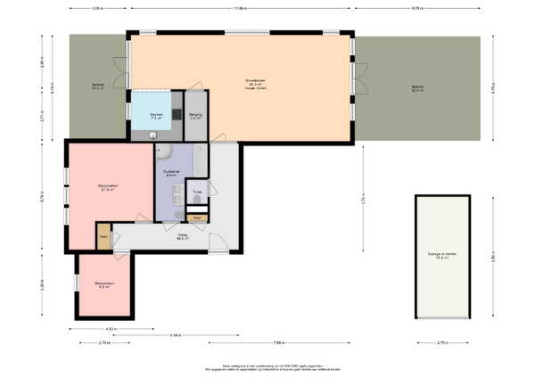
Dit appartement ligt op de eerste verdieping van een kleinschalig modern appartementencomplex (2001), voorzien van een rieten kap. Het appartement beschikt over een ruime lichte woonkamer met aan beide kanten aangrenzend een balkon/terras, voorgelegen met de keuken en twee slaapkamers. De woonoppervlakte bedraagt 132m². In de onderbouw bevindt zich een ruime, afgesloten garagebox. Tevens is er de beschikking over een algemene afgesloten parkeerterrein en een gemeenschappelijke tuin.
De ligging is prima, gelegen in de wijk Bosweide (Ypenburg) nabij Delftse Hout, de Dobbeplas, het oude centrum van Delft, winkelcentra, openbaar vervoer, scholen waaronder British School, kinderdagverblijven en diverse uitvalswegen.
Dit luxe uitgeruste appartement is vanwege ligging, indeling, onderhouds- en uitrustingsniveau uitermate geschikt voor twee en driepersoonshuishoudens. Een bezichtiging is zeker de moeite waard. Maak snel een afspraak!
Ingang appartementencomplex
Middels het eigen parkeerterrein van het appartementencomplex en de fraaie bordestrap komt u bij de afgesloten entree met bellentableau (inclusief videofoon). Deze beschikt over een trappenhuis en lift vanwaar uit u de ondergelegen garage en berging bereikt. De garagedeur is elektrisch bedienbaar. Afmeting garage bedraagt 18m².
Indeling appartement
De ruime gang geeft toegang tot alle vertrekken, waaronder de meterkast, zwevend toilet met fontein, inpandige berging, de ruime badkamer en de twee slaapkamers.
De door hoekligging lichte woon- eetkamer grenst aan beide zijdes over de volle breedte aan een ruim terras. Aan de voorzijde bevindt zich de semi open keuken in L-opstelling, die is voorzien van een granieten aanrechtblad, een 4 pits inductie kookplaat, combinatie oven, vaatwasser, afzuigkap en veel opbergruimte.
De twee slaapkamers zijn aan de voorzijde gelegen en hebben een afmeting van resp. 21,5 m² en 9,2 m².
De badkamer is geheel betegeld en voorzien van ligbad, douchecabine, vrij hangend toilet en een dubbel wastafelmeubel.
Overige kenmerken
Vloeren in de gang, woonkamer en grote slaapkamer zijn voorzien van vloerverwarming
De houten kozijnen zijn uitgerust met HR isolatieglas
Het appartement is volledig geïsoleerd
De keuken is uit 2016
De woning is aangesloten op stadsverwarming
Het aantal groepen bedraagt 7 en 2 aardlekschakelaars
Het energielabel is A en geldig tot 25-12-2030
De VVE is actief, de maandelijkse bijdrage is € 271, inclusief de garagebox
De woning ligt op eigen grond
Parkeren kan in de garage en op eigen terrein, in de omgeving is parkeren gratis
Oplevering in overleg
__________________
Attention lovers of comfortable living in a peaceful environment!
Spacious three-room corner apartment with two large terraces and an indoor garage in a small-scale apartment complex.
This apartment is situated on the first floor of a small-scale modern apartment complex (built in 2001), featuring a thatched roof. The apartment boasts a spacious bright living room with balconies/terraces on both sides, adjacent to the kitchen and two bedrooms. The living area measures 132m². In the basement, there is a spacious enclosed garage box. Additionally, there is access to a communal enclosed parking area and a shared garden.
The location is excellent, situated in the Bosweide district (Ypenburg) near Delftse Hout, the Dobbeplas, the historic center of Delft, shopping centers, public transport, schools including the British School, daycare centers, and various highways.
Due to its luxurious amenities, layout, maintenance, and level of equipment, this apartment is extremely suitable for two and three-person households. A viewing is definitely worthwhile. Make an appointment quickly!
Entrance to the apartment complex
Through the private parking area of the apartment complex and the beautiful board staircase, you arrive at the enclosed entrance with a doorbell panel (including videophone). This area includes a staircase and elevator providing access to the underground garage and storage. The garage door is electrically operated. The garage measures 18m².
Apartment layout
The spacious hallway provides access to all rooms, including the meter cupboard, separate toilet with sink, indoor storage, the spacious bathroom, and the two bedrooms.
The bright living-dining room, due to its corner position, is adjacent to a spacious terrace on both sides. At the front is the semi-open kitchen in an L-shaped layout, equipped with a granite countertop, a 4-burner induction hob, combination oven, dishwasher, extractor hood, and plenty of storage space.
The two bedrooms are located at the front and measure 21.5 m² and 9.2 m² respectively. The bathroom is fully tiled and features a bathtub, shower cabin, wall-mounted toilet, and a double washbasin unit.
Other features:
Floors in the hallway, living room, and master bedroom are equipped with underfloor heating.
Wooden frames are fitted with HR insulated glass.
The apartment is fully insulated.
The kitchen is from 2016.
The property is connected to district heating.
There are 7 groups and 2 residual-current devices.
The energy label is A and valid until 25-12-2030.
The Homeowners Association (VVE) is active, with a monthly contribution of € 271, including the garage box.
The property is on freehold land.
Parking is possible in the garage and on-site, with free parking available in the vicinity.
Delivery by agreement.